The Deep Time Project
Transtectonics
Cinematic-Essays
Words
Worlds
Material-Events
The Deep Time Project
Menu
Transtectonics
Cinematic-Essays
Words
Worlds
Material-Events
Red Extender
Red Extender
.
.
Related Items
Chicago
Architecture, 2025
The Book at the Edge
Architecture, 2025
Boulle-Box
Architecture, 2025
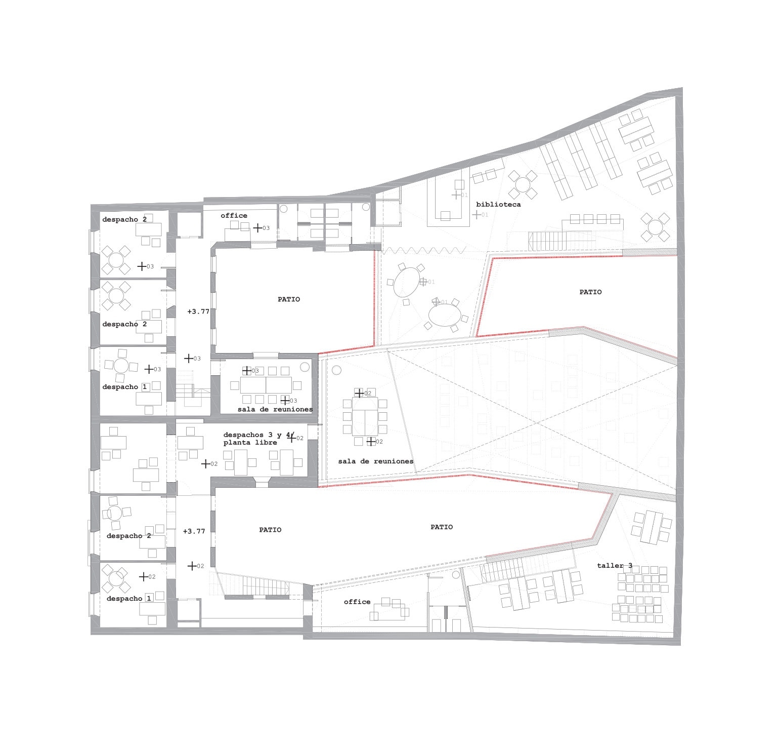
Museum and Library in Taichung
Architecture, 2025
Artificial Landscape
Architecture, 2025