The Deep Time Project
Transtectonics
Cinematic-Essays
Words
Worlds
Material-Events
The Deep Time Project
Menu
Transtectonics
Cinematic-Essays
Words
Worlds
Material-Events
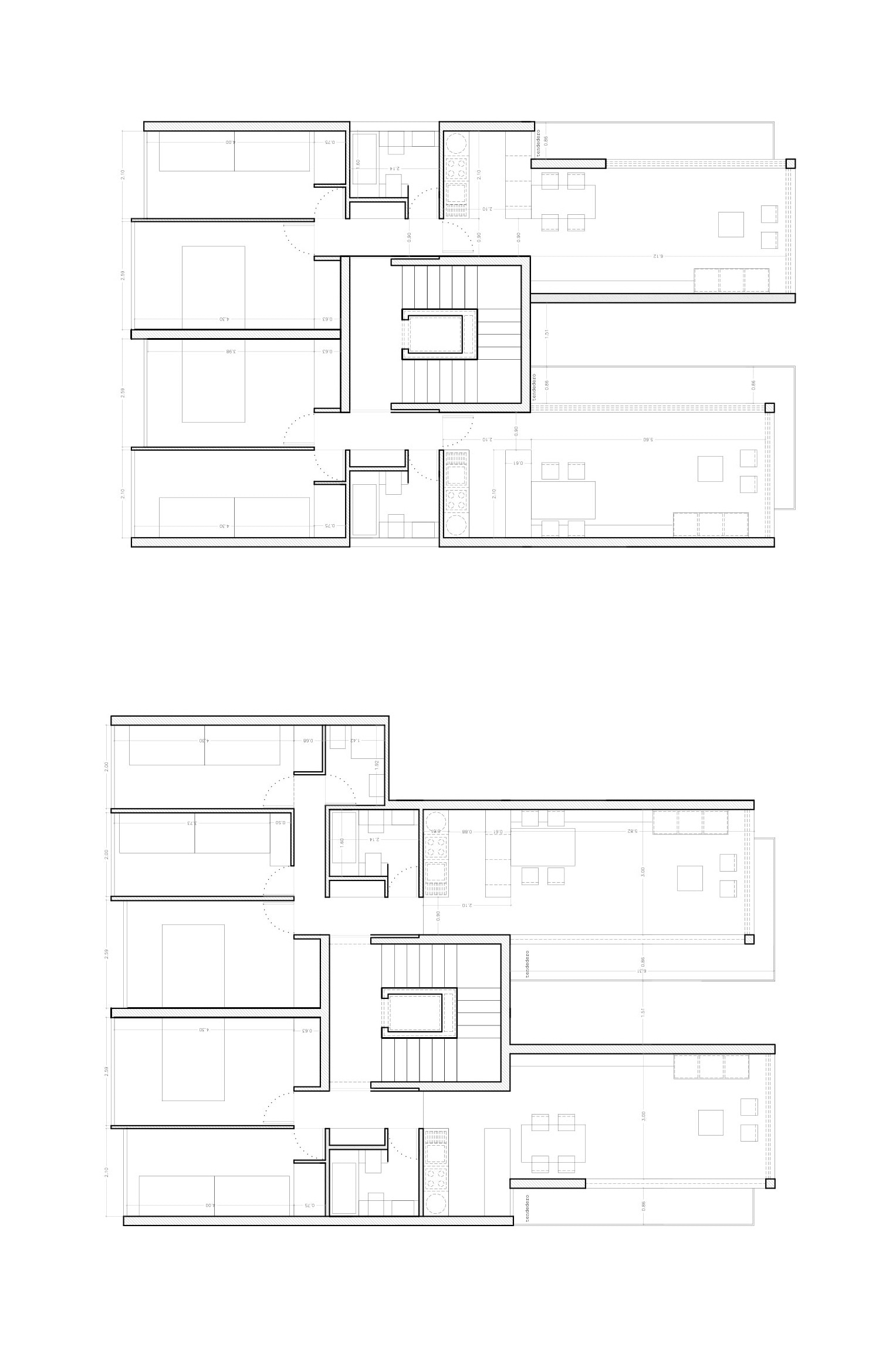
Social Housing Madrid
Social Housing Madrid
.
Related Items
The Book at the Edge
Architecture, 2025
Glass Tower
Transtectonics, 2025
Paper Chandeliers
Transtectonics, 2025
Artificial Landscape
Architecture, 2025
Boulle-Box
Architecture, 2025